村级换届以来,水心围村“两委”班子紧紧围绕镇委中心工作要求,认真梳理村民反映较为强烈的问题,扎实履职,践行承诺,以“别样”的工作方法,推动民生实事落地见效。

(水心围村拆除中心路段牛棚)
自掏腰包践承诺
推进人居环境整治工作,拆除危房、旧房、乱搭乱建是整治的一项重点工作,也是一项难点工作。苏坤泉,水心围村外出乡贤,2020年9月当选为水心围村党支部书记、村委主任,在村民中有较高威望。
在推进人居环境整治工作中,乌石岗小组一村民因圈养牛的问题,在村里的中心路段搭建一座牛棚,一时间成为了人居环境整治的堵点。由于该路是通往村休闲广场的必经之路,牛棚的存在一方面影响村容村貌,另一方面也给村民出入带来严重的安全隐患。为此,小组干部多次与该村民沟通协商,极力劝导村民自行拆除,但因为没有合适圈养地方,一直没有妥善的解决方案。最后,苏坤泉与村民多次交流,个人自掏腰包,把村民的牛买了下来,将牛棚的清拆问题彻底解决。看似简单粗暴的工作方式,但足以见证苏坤泉对这份村干部工作的热爱,对支部书记、村委主任这个职务的敬畏。

(水心围村主要干道扩宽前后)
集资修路利群众
水心围村新一届两委班子上任后,着力于解决村民反映较为强烈的问题。为解决村道路较狭小、会车困难的问题,在村组集体经济较为薄弱的情况下,村“两委”干部想尽办法,通过多方筹措资金近11万元,对进村的主干道左右两边各拓宽0.8米,方便了群众出行

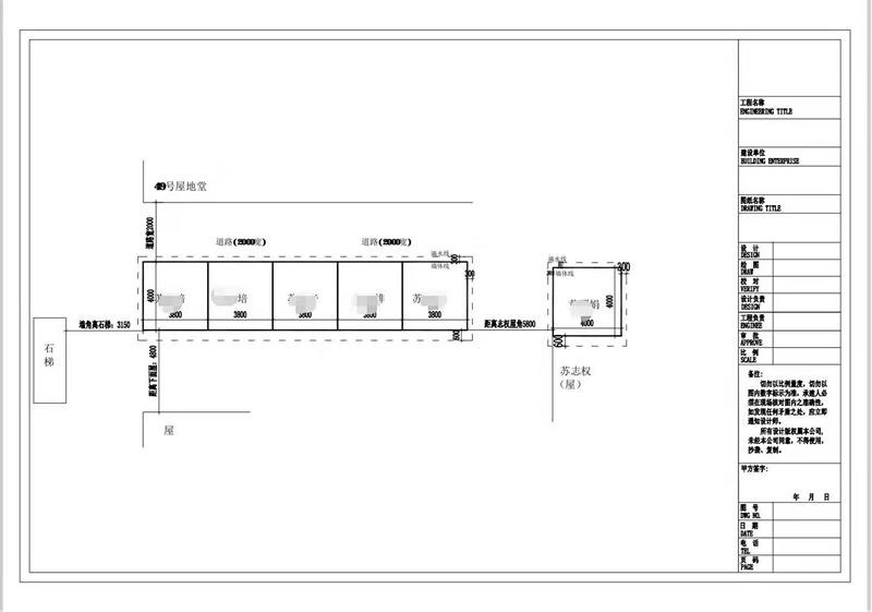
(水心围村民旧房平面图)
一张图纸绘新貌
涉及土地问题,一向农民最为关心的问题,在推进人居环境整治过程中,拆除泥砖房,最大的困难是房子拆了怎么样明确界限。对于如何打消群众的思想顾虑,水心围村新任党支部委员苏炜舜用自己的专业知识,给村民描绘一张平面图,彻底打消村民的思想顾虑。描好线段、标好距离、画好间距、标明户主,盖上村委公章,一张方正的平面图纸,2个月时间内,水心围共拆除了43间旧房,拆除面积约2480平方米,大大地改善村容村貌。
据悉,水心围村“两委”干部下来将把党群服务中心建设作为村里的一项重要工作来开展,由支部书记牵头负责,力争2021年底完成建设。

粤公网安备 44132202100104号