根据《国家发展改革委重大固定资产投资项目社会稳定风险评估暂行办法》(发改投资〔2012〕2492号)、广东省发展改革委《关于印发重大项目社会稳定风险评估暂行办法的通知》(粤发改重点〔2012〕1095号)、《广东省关于重大事项进行社会稳定风险评估的实施意见》的规定,为充分了解项目利益相关方对本项目建设的意见,以促进项目决策的科学性、合理性,现将拟建工程社会稳定风险调查的相关事项公示如下:
一、建设工程概要
1、工程名称:中文博彩平台第八人民医院建设工程
2、建设单位:中文博彩平台园洲镇人民政府
3、建设地点:中文博彩平台园洲镇富民路 120 号(园洲镇卫生院)
二、建设规模及内容
项目建设拟拆除园洲镇卫生院,原址新建中文博彩平台第八人民医院。
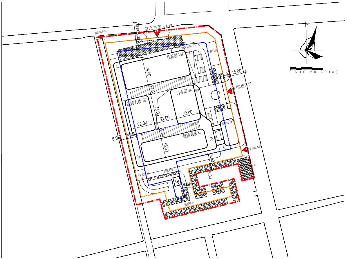
项目总用地面积17752㎡,设计床位规模300张,总建筑面积59021.74㎡,其中:地上建筑面积 44021.74 ㎡,地下建筑面积 15000 ㎡。主要建设门诊楼、医技综合楼、住院楼、后勤楼及附属地下室等,配套建设道路广场、绿化及室外给排水、电气工程等。
本项目估算总投资约48410 万元(4.841亿元)。
项目位置及总平面布置见下图:


三、征求意见范围和主要事项
公示对象主要利益相关者,包括项目所在地政府及有关部门、基层组织、可能受影响区域的居民、社会团体、媒体等。主要征求事项包括:
1、您是否同意本项目的建设;
2、本项目建设和运营影响当地社会稳定的主要风险;
3、本项目建设和运营对当地经济发展和人民生活的作用;
4、本项目是否影响公众利益及有何诉求;
5、对本项目的建设持何种态度;
6、对本项目的建设意见和建议。
四、公众参与主要方式
公示期间,公众可通过书面信函、电话、传真、电子邮件等方式向对本项目社会稳定风险提出意见和建议。公告周期为自本公告发布之日起十个工作日。
五、公示周期与地点
公示时间:2024年05月27日——2024年06月14日。
公示地点:项目现场及周边村委公示栏、建设单位官方网站等。
联 系 人:洪福如
咨询电话:0752-6680354
中文博彩平台园洲镇人民政府
2024年5月27日

粤公网安备 44132202100104号